NEUBAU STUDENTENWOHNHEIM, ROTENBURG
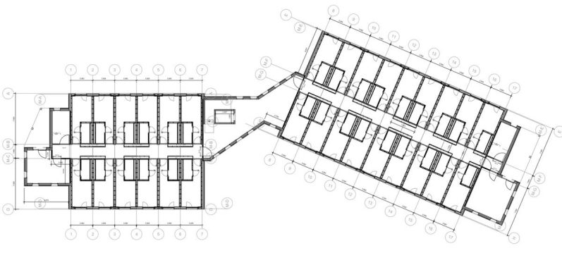
In Bad Hersfeld-Rotenburg entsteht ein fünfgeschossiges Studentenwohnheim mit Parkmöglichkeiten im Erdgeschoss. Die Wohneinheiten der vier Obergeschosse werden in nachhaltiger Holzbauweise als Raummodule ausgeführt.
Treppenhäuser und Gemeinschaftsräume sind ebenfalls in Holzbauweise geplant, werden jedoch konventionell errichtet. Das Erdgeschoss wird vollständig in Massivbauweise ausgeführt und ergänzt das Gebäude, das als Sonderbau der Gebäudeklasse 4 realisiert wird.
BGF: 4.893 m² I Hybridbau
Architekt: ZWO 16 Ingenieure Heumüller + Partner, Geisa
Auftraggeber: Sparkasse Bad Hersfeld - Rotenburg
Seit 2024



Visualisierungen © www.zwo16.de
